1 工程概況 天津美術館坐落于天津市河西區友誼路與平江路交口,地處文化廣場的核心位置,總建筑面積2. 8 萬m2。主入口14m 高的幕墻采用
玻璃肋全
玻璃幕墻,為國內已知最高的單塊玻璃
肋板塊,極大地提高了美術館的通透性。
2 玻璃肋全玻璃幕墻特點 1) 通透性好無鋼支撐骨架,也無
拉索、
拉桿遮擋。吊掛玻璃、肋玻璃通過
金屬(詞條“金屬”由行業大百科提供)夾具(詞條“夾具”由行業大百科提供)及玻璃槽
固定連接,
玻璃板塊之間采用透明膠
填縫,視線被遮擋面積降到最小,使大空間有很強的通透感。
2) 安全性好整個幕墻體系受力簡單,
荷載傳遞明確,整個結構穩固。
建筑幕墻與
主體結構采用可動連接,豎向幕墻通常懸掛在主體結構上,當主體結構發生位移時,幕墻相對于主體結構可以活動,通過吊夾和玻璃肋連接飾面玻璃,幕墻重力等豎向荷載全部由上部結構梁承載,因此幕墻玻璃自然垂直,板面平整,并且在地震或大風沖擊下,整幅玻璃幕墻在一定限度內做
彈性變形,避免了
應力集中。
3) 裝飾效果強由于吊掛玻璃幕
墻板塊分格尺寸大,飾面玻璃自然垂直,板面平整,避免了映射凌亂。
4) 施工速度快吊掛幕墻施工工藝簡單,構配件數量少,施工速度快。
盡管玻璃肋全玻璃幕墻擁有很多優點,但在第1 次施工完畢后玻璃肋大面積
爆裂,為此重新進行了設計與施工。
3 第1次玻璃肋全玻璃設計方案及施工結果分析 3. 1 設計方案
本工程全玻璃幕墻
面板采用( 10 + 12A + 10 )mm 雙鋼化
中空Low-E 玻璃,水平分格為2 160mm,豎向分格為4 700,5300,4000mm,全玻璃幕墻完成面高14. 00m。第1 次玻璃肋全玻璃方案如下。
1) 全玻璃幕墻面板玻璃采用8mm 厚
不銹鋼托板托住,不銹鋼托板
焊接于對接
鋼板上; 2 塊對接鋼板厚20mm,采用6 根16mm 對穿
螺栓固定于玻璃肋;
玻璃面板與玻璃肋間采用耐候
硅酮結構膠固定( 見圖1) 。

2) 玻璃肋由2 段玻璃對接而成,對接后玻璃肋總高度為14. 16m。玻璃肋之間采用2 塊20mm
厚鋼板配合M24 不銹鋼螺栓群進行對接,螺栓布置情況如圖2 所示。

3) 玻璃肋為19mm + 2. 28mm
PVB + 19mm 超白雙
鋼化夾膠玻璃(詞條“鋼化夾膠玻璃”由行業大百科提供)。
4) 全玻璃幕墻底部
節點處理如圖3 所示。

3. 2 方案實施結果
全玻璃幕墻安裝完成2 個月后,外墻屋檐
石材吊頂安裝完成,玻璃肋陸續破壞,嚴重影響玻璃幕墻的外觀和質量。
3. 3 原因分析
針對此次全玻璃幕墻超高玻璃肋大規模爆裂,2012 年1 月2 日,天津文化中心工程建設指揮部組織召開美術館系統北側玻璃肋構造節點的專家論證會,專題研究該部位玻璃肋爆裂問題的原因,探討解決方案。玻璃肋破壞的原因有如下幾點。
1) 屋面挑檐
鋼結構在裝飾鋼架及
龍骨安裝過程中的沉降對玻璃肋施加了較大的應力。
2) 玻璃肋對接部位受力較為復雜,玻璃肋螺栓群連接受力與鋼結構不同,各螺栓無法共同受力,同時玻璃肋開孔過多,局部應力集中嚴重。
3) 玻璃肋底部只留10mm 縫隙,未能給結構沉降留有充足的空間,需測量出結構
變形的具體量,以確定玻璃肋底部空隙預留量。
4 第2次超高玻璃肋設計方案在經過專家論證及分析的基礎上,對第1 次的設計及施工方案進行了重要改變,方案如下: 1) 立面分格及玻璃面板按原方案。
2) 全玻璃幕墻面板玻璃采用8mm 厚不銹鋼托板托住,不銹鋼托板焊接于豎向不銹鋼
夾板上; 不銹鋼夾板厚10mm,采用2 根24mm 對穿螺栓固定于玻璃肋,減少了玻璃肋開孔數量,降低玻璃肋自爆的風險; 玻璃面板與玻璃肋間采用耐候
硅酮結構膠固定( 見圖4) 。

3) 玻璃肋膠片由PVB 改為SGP 膠片,玻璃肋為3 片( 12 + 2. 28SGP + 12 + 2. 28SGP + 12) mm 超白鋼化
夾膠玻璃(詞條“夾膠玻璃”由行業大百科提供),總高14. 16m,玻璃肋通長,無需對接。SGP 作為
夾層玻璃中間膜,大大拓展了
夾層玻璃性能。SGP 的
撕裂強度(詞條“撕裂強度”由行業大百科提供)是普通PVB 的5 倍,
硬度是普通PVB 的100 倍。SGP 的高
強度(詞條“強度”由行業大百科提供)、高透明、
耐久性、多種結構及安裝靈活,滿足市場要求。
4) 玻璃肋寬600mm,上端采用2 個不銹鋼吊夾將玻璃固定,下端玻璃肋懸空,空隙為50mm,空間充足,給結構沉降留有充足的空間,玻璃肋完全處于吊掛狀態( 見圖5) 。
5 施工方案 5. 1 玻璃肋分布情況
天津美術館為全玻
玻璃幕墻工程(詞條“玻璃幕墻工程”由行業大百科提供),現場更換的玻璃肋最大長度為14. 160m,該超長玻璃肋一共21 片。
5. 2 玻璃肋運輸
由于玻璃肋長達14. 160m,在運輸過程中,廠家在玻璃肋出廠時用木箱進行包裝,每2 片玻璃肋包裝在一起,采用加長貨車運輸。
5. 3 施工流程
由于本次更換玻璃肋時,現場整體施工已經完成,所以更換時現場的成品保護問題很重要,同時由于拆除、重新安裝玻璃比剛開始的安裝難度更大,因此相關的安全風險因素較高。為保證本次玻璃安全更換,制定了以下更換工藝工序,整個更換過程嚴格按照本工序執行,如圖6 所示。
5. 3. 1 施工機具準備
本次更換玻璃主要設備包含: 電焊機、堆高車、汽車式起重機、手動葫蘆、電動卷揚機、電動玻璃吸盤等。由于本工程的玻璃肋最大質量為808. 26kg,面板玻璃最大質量為572. 4kg,吊裝高度為14. 160m,故選用Nk250 型25t 全液壓汽車式起重機進行施工。采用載重為2t 的手動葫蘆,保證玻璃肋吊裝安全,同時保證安全系數> 2。
5. 3. 2 破損玻璃肋拆除及鋼架加固
超高玻璃肋安裝之前,需先對玻璃面板及破損玻璃肋進行拆除,之后對鋼架進行整體加固。
5. 3. 3 玻璃肋安裝
本工程全玻璃幕墻安裝高度為14m,但玻璃肋的長度為14. 160m,同時現場的懸挑部分吊頂已經安裝完成,因此如何將14. 160m 的玻璃肋安裝就位是本工程的安裝難點。通過專家論證,本工程的玻璃安裝按照如下步驟進行。
1) 現場前期準備為保證能夠將超長玻璃肋吊裝就位,只能在凈空間上考慮。首先將頂部的通長角鋼割除,這樣可以保證玻璃肋在吊裝過程中,有向上串行200mm 的空間,便于玻璃肋調整就位,同時將地面的地基向下挖除泥土,泥土向下挖除深度約500mm,使得玻璃肋安裝有600mm 串動的空間。
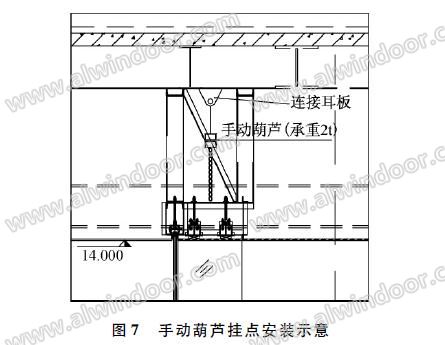
2) 在鋼結構頂部安裝2 個手動葫蘆的吊掛點,每個吊掛點能承受3t 的質量。安裝2 個手動葫蘆,一是起到保險作用,二是便于空中轉向、微調工作展開,手動葫蘆的吊掛點安裝如圖7 所示。
3) 加工制作玻璃肋吊裝的支架(詞條“支架”由行業大百科提供),采用□200 ×100 × 3 的鋼管,以及└50 × 4 進行焊接( 見圖8) ,采用鋼架保證吊裝過程中玻璃肋不因長度較大而發生失穩。在玻璃夾表面全部粘貼10mm 厚的橡膠皮,避免玻璃與鋼架硬性接觸產生破壞; 吊裝前將每塊玻璃肋手動葫蘆的吊裝點選好。
4) 將到場的玻璃平行于即將安裝的玻璃幕墻,同時在地面間隔1. 5m 區域放置木方,將玻璃肋放置在木方上。
5) 在吊裝時將玻璃肋立起,再將玻璃肋的吊夾從側邊插入玻璃肋底部,通過布帶進行固定。
6) 采用25t 汽車式起重機進行吊裝,吊裝時將吊掛點設置在玻璃支架上。
7) 起吊時當玻璃肋頂部距離石材吊頂約1 000mm時,采用手動葫蘆進行微調。通過地面人員將玻璃肋斜向推入地面已經挖好的坑內,這樣便于玻璃肋在高度方向進行調整。當玻璃肋微調至安裝部位時進行固定。
8) 當玻璃肋調整到位時,最后施工地面部分的地槽,進行玻璃肋固定,在地槽施工時,用濕棉布將底部玻璃肋包裹好,避免與鋼地槽接觸,以免鋼地槽焊接時導致玻璃肋局部受熱而發生炸裂。
9) 安裝玻璃肋的轉接鋼板,在玻璃肋的孔部位穿入螺栓前必須插入定制的
尼龍套管,避免
螺桿與玻璃肋硬性接觸,導致玻璃肋的破損。
10) 進行面板安裝,在面板安裝時將采用8 爪儀電動吸盤,通過起重機進行安裝。
11) 面板
打膠(詞條“打膠”由行業大百科提供),并清理面板,同時拆除相關的安裝措施。
5. 4 施工操作注意事項
1) 玻璃面板及破損玻璃肋拆除前需將玻璃固定牢固后方可進行拆除工作。
2) 超長玻璃肋裝車卸車及施工現場搬運過程中注意
保護玻璃肋,玻璃肋抬動過程中,工人均勻布置于玻璃肋一側,先將玻璃肋側立起來,同時將玻璃抬起,避免玻璃肋變形。
3) 玻璃肋安裝之前,先將玻璃肋輕放于吊裝支架后捆綁牢固。
4) 玻璃肋吊裝過程中,需將玻璃吊裝支架緩慢豎起; 玻璃吊裝支架豎直后,玻璃肋就位,玻璃吊夾安裝完畢,確保玻璃肋受拉后方可拆除吊裝支架。
5. 5 施工安全注意事項
所有施工操作嚴格執行本方案中施工相關規定,對整個玻璃更換過程中需要注意以下問題: ①腳手架、玻璃班組進場前進行現場施工教育,并定期進行安全交底。②玻璃肋更換施工過程中,施工區域必須采用隔離帶與非區域隔離開,并安排專人看守,避免施工過程有人員誤入造成傷害。③拆除的
碎玻璃必須借助工具將碎玻璃抬走,避免直接用手清理造成劃傷。④汽車式起重機起吊時,必須按起重相關規定執行。確認吊裝空間,視線遮擋等相關情形。⑤在玻璃更換完畢后,對施工區域內的垃圾進行全面清除作業,尤其是石材表面的雜物清理干凈。
6 結語 1) 對于首次施工的工程,應組織專家論證,對幕墻設計、施工方案的可行性進行探討,施工前期排除方案的重大隱患。
2) 幕墻設計人員在設計階段,要對構造形式、變形、主體結構沉降對幕墻的影響等多方面進行考慮。
3) 幕墻設計人員在進行方案選擇時要對材料性能有充分的理解,同時緊跟幕墻行業材料發展的現狀,及時選用性能更優、更容易滿足設計要求的
幕墻材料。
4) 施工前制定有針對性的施工方案,必要時進行預演。
參考文獻: [1 ] 中國建筑科學研究院.
JGJ102-2003 玻璃幕墻工程技術規范[S]. 北京: 中國建筑工業出版社,2003.
[2 ] GB15763. 2-2005 建筑用
安全玻璃第2 部分:
鋼化玻璃[S]. 北京: 中國標準出版社,2005.
[3 ] JGJ /
T139-2001 玻璃幕墻工程質量檢驗標準[S]. 北京: 中國建筑工業出版社,2005.
[4 ] 唐際宇,符永輝,劉濤,等. 昆明新機場航站樓基于鋼彩帶的拉索玻璃幕墻施工技術[J]. 施工技術,2012,41( 9) : 6-10.
[5 ] 王力尚,田三川,郭宇,等. 迪拜天閣項目玻璃幕墻施工技術[J]. 施工技術,2012,41( 18) : 81-85.
[6 ] 周桂林,呂令毅,崔開榮. 普通
全玻幕墻玻璃肋失穩臨界荷載[J]. 工程建設與設計,2007( 11) : 90-92.

坐落于天津市河西區友誼路與平江道交口,地處文化廣場的核心位置,總建筑面積2.8萬平方米,臨湖而建,建筑外觀簡潔大方,極富現代氣息,內部設施完善。