摘要:根據上海地區的氣候特點,對跨層箱體式和整體式雙層節能幕墻在上海地區高層建筑中的經濟性進行分析,闡述了雙層幕墻節能技術在上海地區的適用性
關鍵詞:跨層箱體式和整體式雙層熱通道幕墻;上海地區;節能; 經濟性 |
|
1、 概述:
雙層熱通道幕墻有多種構造形式,其節能性和造價各有不同, 在上海地區高層建筑中的經濟性與單層單元式幕墻相比差別較大。本文選擇適合上海地區夏熱冬冷的氣候特點且性價比高的整體式雙層熱通道幕墻及跨層箱體式雙層熱通道幕墻,從與單層單元式幕墻對比的角度,詳細說明其主要構造特點、節能性及經濟性。
2、 單層單元式幕墻的經濟性及主要缺點
以采用法國圣戈班遮陽型LOW-E中空玻璃和熱斷橋鋁型材單元式幕墻為例, 其玻璃的傳熱系數Ka值可低至1.60W//m2•K, 熱斷橋鋁框等效傳熱系數Kb為5.68 W//m2•K,按鋁框占面積4%計,該幕墻的綜合傳熱系數值如下::
K1=0.04*5.68+0.96*1.60=1.7632 W/m2•K
該單元式幕墻很適合上海地區夏季防熱要求,但對室內空調功率要求仍較高,同時對冬季太陽輻射隔熱作用不利于室內采暖需要,而且直接供應室外受污染及含揚塵的空氣對室內人群有一定的鍵康影響。該單元式幕墻造價按1320元/ m2計,則產品本身經濟熱阻為:E1=1.7632*1320=2327.42元/( m2•m2•K) / W
3、雙層熱通道幕墻在上海地區高層建筑中的經濟性分析
雙層熱通道幕墻是一種新型的節能幕墻,由內、外層圍護結構組成。根據氣流途徑的不同,可分為“封閉式內循環體系”和可自然通風的“敞開式外循環體系”兩個類型,而后者在舒適、節能、自然通風等方面有明顯的優勢,使前者面臨被淘汰的局面。敞開式雙層熱通道幕墻按氣流進出途徑可分為“箱體式雙層幕墻體系”、“通道式雙層幕墻體系”、“廊道式雙層幕墻體系”、“整體式雙層幕墻體系” 四種基本形式,其中整體式雙層熱通道幕墻和跨層箱體式雙層熱通道幕墻比較適合上海地區夏熱冬冷的氣候特點且性價比較高。由于跨層箱體式雙層熱通道幕墻的氣口控制機構數量不超過逐層箱體式雙層熱通道幕墻的一半, 整體式雙層熱通道幕墻只有單層鋁龍骨,而節能性差別不大,故跨層箱體式特別是整體式雙層熱通道幕墻經濟性較為為理想,因此本文對跨層箱體式和整體式雙層熱通道幕墻應用在高層建筑中的經濟性進行對比分析。
3.1 跨層箱體式雙層熱通道幕墻
3.1.1 跨層箱體式雙層熱通道幕墻的主要構造特點
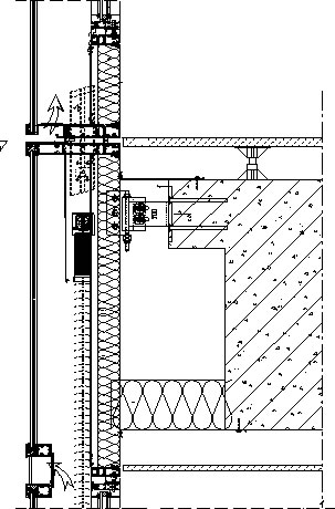
以二層或三層為一個氣流單元,每個氣流單元上下端間隔設置可調控的進出氣口, 相鄰單元間分隔高差為風口高度;有層間水平分隔;豎向以二個柱間或多個柱間為一道豎向分隔,分隔可以采用密封門的形式,以實現層間引走;可以是內外層均為單元式(玻璃可點式連接),也可以是內外層均為框架式,還可以是外層單元式、內層為窗等。不論何種形式, 外層采用單片玻璃和無熱斷橋鋁型材、內層采用LOW-E中空玻璃和熱斷橋鋁型材。其中外層采用點式單片透明鋼化玻璃單元式幕墻、內層采用LOW-E中空玻璃熱斷橋窗且遮陽百葉設在室外的跨層箱體式雙層熱通道幕墻的外觀比較現代,體現高科技派建筑風格,性價比很高, 很適合上海這樣的夏熱冬冷地區,本文即以該案例為例,其構造示意圖如下:


3.1.2 跨層箱體式雙層熱通道幕墻的節能性分析
跨層箱體式雙層熱通道幕墻采用可轉換氣流運動方式,夏季打開全部風口,利用氣流的煙囪效果在熱通道內形成上升外排的氣流,帶走通道內的熱量,節能效果可達38~60 %;冬季關閉全部風口,在熱通道內形成溫室效應,節能效果可達42~52 %;秋季和春季可結合溫度高低采用以下三種節能形式:①取暖形式;關閉全部風口;②散熱形式,關閉進氣口,打開排氣口,熱通道內熱空氣上升,從排氣口排出,同時外部冷空氣從排氣口沉入,造成熱通道內氣流微循環;③通氣形式,開啟進氣口,關閉排氣口,外部冷空氣在一定的風壓下進入熱通道,擠出部分熱空氣,利用內幕墻的開啟扇向室內補入新鮮空氣。后二種形式的節能效果與關(開)通氣口的比率有很大關系,節能比率介于零和全開風口節能率之間。
箱體式雙層幕墻的氣流組織形式適用于冬冷夏熱地區,對春秋季也有很好的節能效果。
利用流體力學計算軟件, 對本案箱體式雙層幕墻內的空氣流動和傳熱情況進行數值模擬研究,檢驗該幕墻的節能效果。結果如下: 冬季傳熱系數K值為1.082 W/m2•K,在夏季傳熱系數K值為1.229 W/m2•K 。
3.1.3 跨層箱體式雙層熱通道幕墻單價組成簡要分析
該箱體式雙層幕墻造價組成包括: 外層10mm透明玻璃點接單元式幕墻、內層LOW-E中空玻璃熱斷橋窗(按60%鋁塑板40%窗計)、手動遮陽百葉、通風小箱體(含氣流閥門及電動驅動裝置、風口百葉、鋼隔柵、分隔門等)。其經濟性單價合計約為2700元/m2。
3.1.4 跨層箱體式雙層熱通道幕墻產品本身經濟熱阻分析
該箱體式雙層幕墻產品本身經濟熱阻為:
冬季: E2=1.082*2700=2921.4元/( m2•m2•K) / W
夏季: E2=1.229*2700=3318.3元/( m2•m2•K) / W
3.2 整體式雙層熱通道幕墻
3.2.1整體式雙層熱通道幕墻的主要構造特點
最經濟的形式是內外層均為同一單元體,明框時采用熱斷橋鋁型材,其余配置及氣流形式基本同箱體式雙層熱通道幕墻.
由于整體式雙層熱通道幕墻較薄,可以比跨層箱體式雙層熱通道幕墻至少節約300mm寬的空間,經濟性更好,且外觀比較現代,體現高科技派建筑風格,性價比很高, 更適合上海這樣的夏熱冬冷地區,本文即以該案例為例,其構造示意圖如下:

3.1.2整體式雙層熱通道幕墻的節能性分析
整體式雙層熱通道幕墻氣流運動方式基本同箱體式雙層幕墻,差別僅僅在于前者腔體小后著腔體大。
利用流體力學計算軟件, 對本案整體式雙層幕墻內的空氣流動和傳熱情況進行數值模 擬研究,檢驗該幕墻的節能效果。結果如下:
冬季傳熱系數K值為1.104 W/m2•K,在夏季傳熱系數K值為1.253 W/m2•K 。
3.13整體式雙層熱通道幕墻單價組成簡要分析
該整體式雙層幕墻造價組成包括: 外層10mm透明玻璃點接單元式幕墻、內層LOW-E中空玻璃、手動遮陽百葉、通風小箱體(含氣流閥門及電動驅動裝置、分隔門等)。其經濟性單價合計約為2300元/m2。
3.1.4整體式雙層熱通道幕墻產品本身經濟熱阻分析
該整體式雙層幕墻產品本身經濟熱阻為:
冬季: E3=1.104*2300=2539.2元/( m2•m2•K) / W
夏季: E3=1.253*2300=2881.9元/( m2•m2•K) / W
4、 跨層箱體式和整體式雙層節能幕墻在上海地區高層建筑中的經濟性分析
1、根據第二章分析結果, 采用法國圣戈班遮陽型LOW-E中空玻璃和熱斷橋鋁型材的單層單元式幕墻產品本身經濟熱阻為:
E1=1.7632*1320=2327.42元/( m2•m2•K) / W
2、根據第3.1.4節分析結果, 外層采用點式單片透明鋼化玻璃單元式幕墻、內層采用LOW-E中空玻璃熱斷橋窗且遮陽百葉設在室外的跨層箱體式雙層熱通道幕墻產品本身經濟熱阻為:
冬季: E2=1.082*2700=2921.4元/( m2•m2•K) / W
夏季: E2=1.229*2700=3318.3元/( m2•m2•K) / W
3、根據第3.2.4節分析結果, 外層采用點式單片透明鋼化玻璃單元式幕墻、內層采用LOW-E中空玻璃的整體式雙層熱通道幕墻產品本身經濟熱阻為:
冬季: E3=1.104*2300=2539.2元/( m2•m2•K) / W
夏季: E3=1.253*2300=2881.9元/( m2•m2•K) / W
以上數值表明,整體式雙層節能幕墻與單元式幕墻的應用在上海地區高層建筑中的經濟性差別在20%以內, 冬季時經濟性差別較小,且節約空間,有很強的推廣應用價值。而跨層箱體式雙層幕墻比單元式幕墻經濟性差別略大,在30%左右,主要原因是箱體式雙層幕墻多了內層鋁龍骨。雖然,氣流在箱體中的流動比較復雜, 按流體力學計算軟件對本案箱體式雙層幕墻和整體式雙層幕墻內的空氣流動和傳熱情況進行數值模擬研究是遵循一種理想的氣體流動狀態,因而其驗證結果是一個近似值,有待進一步進行學術試驗研究,但在能源的戰略意義凸現重要的今天,其揭示的利用自然條件節約能源的經濟意義展示了幕墻的今后發展方向。而且, 雙層節能幕墻還有以下六點主要間接經濟效益:
1)、自然通風,可提供經過濾的新鮮空氣,有益室內人員的身體鍵康。
2)、可創造舒適衛生的室內環境,對辦公工作效率有一定的提高作用。
3)、外層點式單片透明鋼化玻璃單元式幕墻是一件現代化的科技外衣,具廣告宣傳效應,有助提高大樓的出租率和租金。
4)、良好的隔音性。
5)、能夠改造和保護舊建筑。
6)、跨層整體式雙層熱通道幕墻墻厚基本同單層單元式幕墻,經濟性較為理想。
參考文獻:
1、 《Intelligent Skins》(英)邁克爾•威金頓 (英)祖德•哈里斯著2003年;
2、 《雙層結構幕墻》 龍文志 主編 2003年;
3、 《雙層通風幕墻》 趙西安 主編 2001年;
4、 《民用建筑熱工設計規范》 GB50176-1993;

|
|