1 前言
隨著人們對維護結構通透性要求的提高,索結構
玻璃幕墻在大型場館、會展中心、機場等
公共建筑中應用日益廣泛。
拉索幕墻連接設計對保證拉索幕墻的安全性有著決定性的作用。
在拉索幕墻的連接設計中,拉索和懸空桿之間的連接,一般通過
螺釘連接來實現。通常情況下,計算中考慮了螺釘承受水平方向的
風荷載、
地震作用和防止受豎向的自重
荷載作用而下滑的
預緊力。但是結合工程實際情況,我們發現: (1)幕墻
構件(包含
面板、
龍骨)自身的重心相對連接螺釘有偏心作用,從而形成
彎矩,使上部螺釘受拉、下部螺釘受壓。(2)防止下滑的預緊力要根據實際連接情況確定。下面舉例來闡述以上的兩個
結論。
2 常見拉索和懸空桿之間的連接螺釘受力分析
2.1 荷載組合
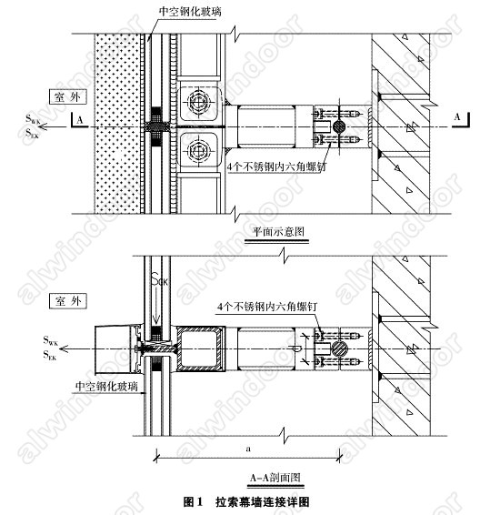
拉索和懸空桿之間的連接螺釘的選取,主要由螺釘所承受的預緊力大小來決定。具體
節點參見下圖1。





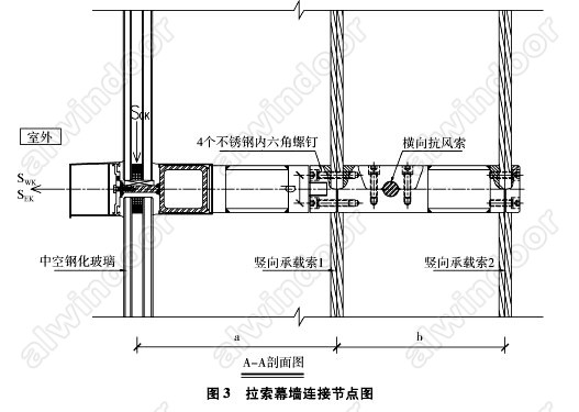
3.工程實例計算連接螺釘(根據連接情況確定防止下滑的預緊力)
下圖3所示節`氪為某拉索幕墻的連接節點。由于幕墻懸挑很多,此處采取兩根豎向拉使兩根豎索的拉力形成一對力偶,以抵抗幕墻自重偏心產生的彎矩。


3.1 連接設計概述及傳力路徑
該工程采用常用的豎向索承受重力,橫向索承受風荷載的設計。重力通過
連接件一傳遞給直徑為承重索1和2。該處是利用4個
不銹鋼內六角螺釘把壓塊一和連接件二鎖緊
固定在直徑為承重索1上;橫向的則為抗風索,同樣是采用4個不銹鋼內六角螺釘把壓塊二和連接件二鎖緊固定在橫向抗風拉索上,都是利用壓塊與索的預緊力產生摩擦力的形式傳遞,詳見圖4。


4 結論
常見拉索和懸空桿之間連接螺釘的防止下滑預緊力為玻璃幕
墻板塊的自重。但在實際工程中應按具體情況進行受力分析,如本文工程實例中,由于幕墻懸挑很多,采取兩根豎向拉索,使兩根豎索的拉力形成一對力偶,以抵抗幕墻自重偏心產生的彎矩。而此處螺釘防止下滑的預緊力為帶懸臂的梁靠近懸臂端
支座的反力。在實際工程分析中,要正確的選取力學模型,只有這樣才能保證設計計算的合理眭與安全性。
參考文獻
[1] 龍馭球包世華,結構力學教程,高等教育出版社,2000
[2] 陳紹蕃 顧強,
鋼結構基礎(第二版),中國建筑工業出版社,2007
[3] GB5O009_2001(2006年版),
建筑結構荷載規范,中國建筑工業出版社,2006
[4]
JGJ102-2003,
玻璃幕墻工程技術規范,中國建筑工業出版社,2003
[5] 徐灝,機械設計手冊(第二版),機械工業出版社,2004
與【】相關熱點資訊:
【了解更多 “” 相關信息請訪問
幕墻專區 】